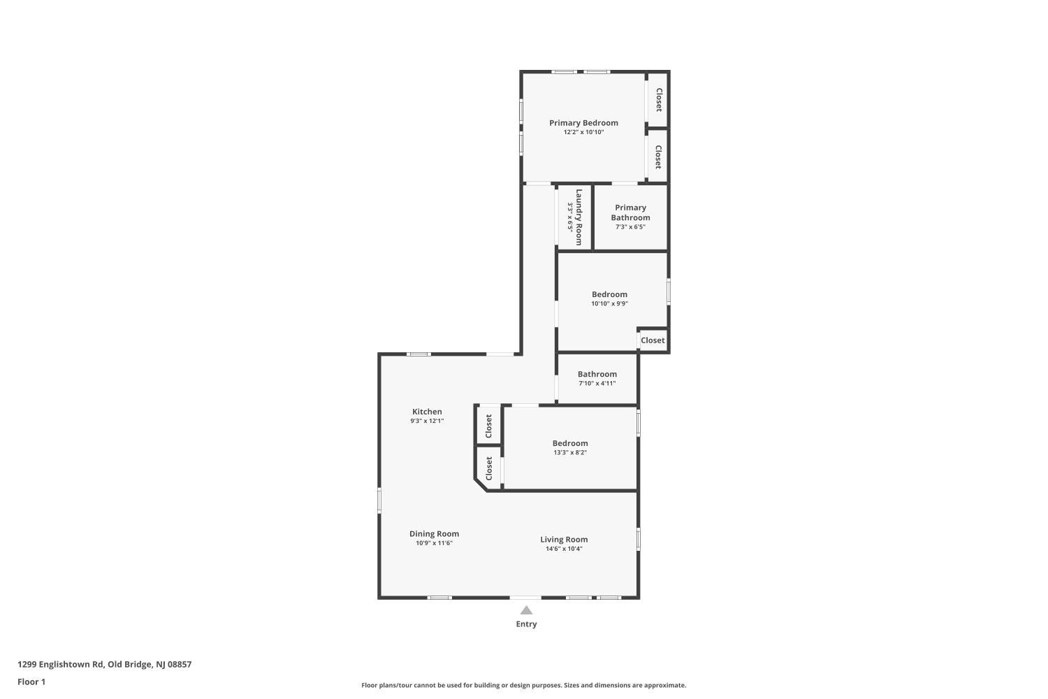
1299 Englishtown Road, Old Bridge NJ 08857
Old Bridge, NJ 08857
Sq. Ft.
1,139Beds
3Baths
2.00Year Built
1955Pool
No
Welcome to this beautifully rebuilt ranch-style home with low taxes located at 1299 Englishtown Road in desirable Old Bridge. Renovated in 2026, this 3-bedroom, 2-full-bath home has been completely rehabbed from the foundation up using premium materials and high-end finishes, offering decades of worry-free living. The open and inviting layout features hardwood flooring and recessed lighting throughout. The modern kitchen showcases smart stainless steel appliances, quartz countertops, a marble backsplash, and ample cabinetry providing plenty of storage. Both bathrooms are thoughtfully updated with sleek finishes and glass shower doors. Additional features include an attic with plenty of crawl space and a large backyard, perfect for outdoor enjoyment. Ideally located near restaurants, shopping, and schools, this move-in-ready home delivers quality craftsmanship in a highly convenient location.
Courtesy of REAL
Property Details
Beds: 3
Baths: 2
Half Baths: 0
Total Number of Rooms: 6
Dining Room Features: Living Dining Combo
Kitchen Features: Granite/Corian Countertops, Breakfast Bar, Eat-in Kitchen
Appliances: Dishwasher, Gas Range/Oven, Microwave, Refrigerator, See Remarks, Range, Gas Water Heater
Has Fireplace: No
Number of Fireplaces: 0
Has Heating: Yes
Heating: Forced Air
Cooling: Central Air
Flooring: Ceramic Tile, Wood
Basement: Crawl Space, None
Interior Details
Property Class: Single Family Residence
Architectural Style: Ranch
Building Sq Ft: 1,139
Year Built: 1955
Stories: 1
Levels: One
Is New Construction: No
Has Private Pool: No
Has Spa: No
Has View: No
Has Garage: No
Has Attached Garage: No
Garage Spaces: 0
Has Carport: No
Carport Spaces: 0
Covered Spaces: 0
Has Open Parking: Yes
Parking Features: 1 Car Width, 3 Cars Deep, Asphalt, Driveway
Total Parking Spaces: 0
Exterior Details
Lot Size (Acres): 0.1980
Lot Area: 0.1980
Lot Dimensions: 0.00 x 0.00
Lot Size (Square Feet): 8,625
Exterior Features: Open Porch(es), Enclosed Porch(es)
Roof: Asphalt
Patio and Porch Features: Porch, Enclosed
On Waterfront: No
Property Attached: No
Utilities / Green Energy Details
Gas: Natural Gas
Sewer: Public Sewer
Water Source: Public
# of Electric Meters: 0
# of Gas Meters: 0
# of Water Meters: 0
HOA and Financial Details
Annual Taxes: $5,720.00
Has Association: No
Association Fee: $0.00
Association Fee 2: $0.00
Association Fee 2 Frequency: Monthly
Similar Listings
- SqFt.1,382
- Beds2
- Baths2
- Garage0
- PoolNo
- SqFt.1,139
- Beds3
- Baths2
- Garage0
- PoolNo
- SqFt.1,204
- Beds3
- Baths2
- Garage1
- PoolNo
- SqFt.1,255
- Beds3
- Baths2
- Garage0
- PoolNo

Back to search


































