22 milstone Court, Winslow NJ 08081
Winslow, NJ 08081
Sq. Ft.
1,462Beds
3Baths
1.50Year Built
1972Pool
No
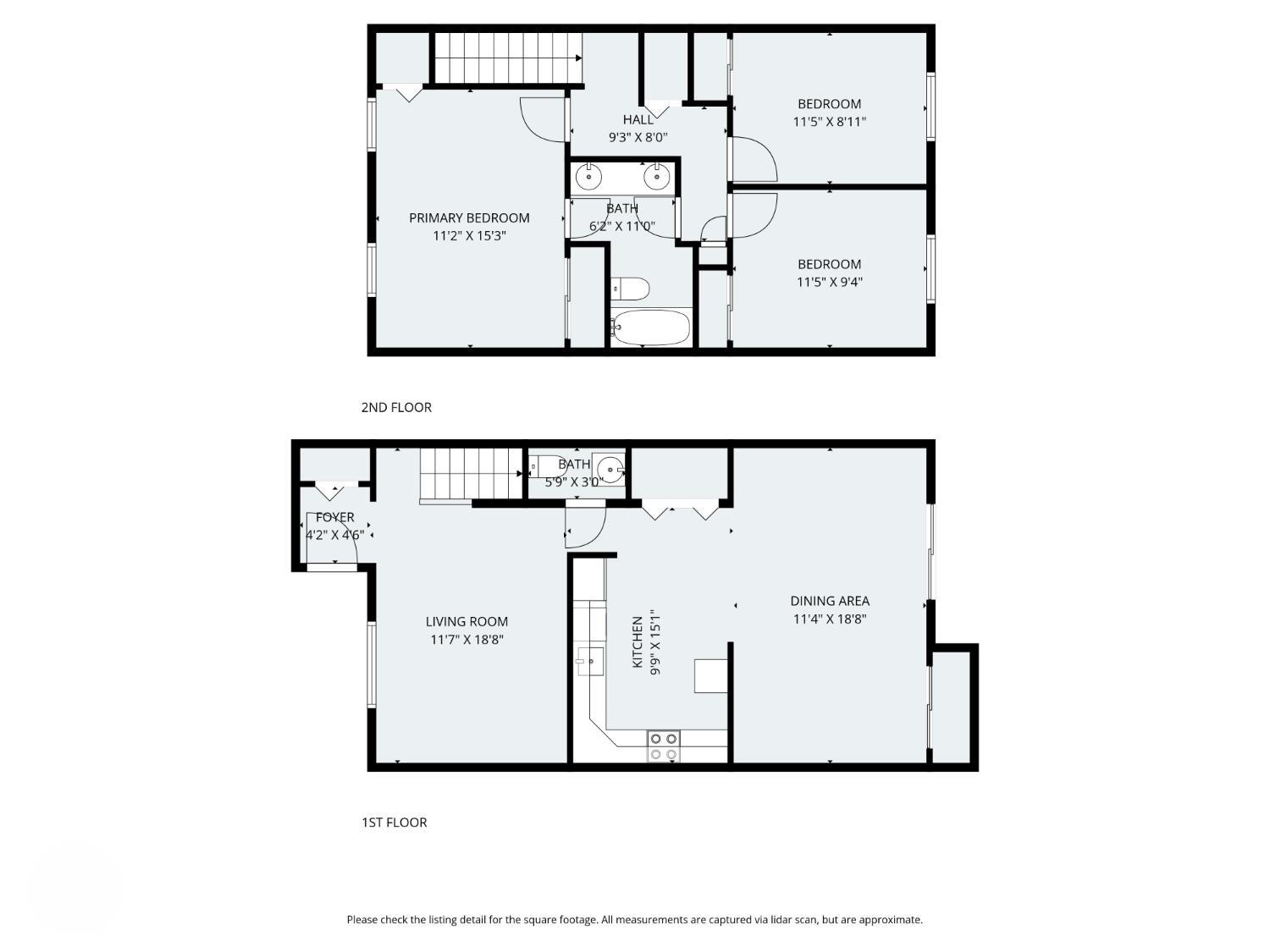
Move-in ready, recently renovated townhome in Winslow Crossing at Manor Hall. Welcome to 22 Milstone Court, a beautifully maintained 3-bedroom, 1.5-bath home located in the desirable Winslow Crossing at Manor Hall community of Winslow Township in Sicklerville, NJ, offering a well-established neighborhood setting and a low HOA fee. This is an FHA-approved community, providing additional financing flexibility for buyers. This spacious two-story residence features modern finishes and updated flooring throughout, along with recessed lighting that creates a bright and contemporary feel across the main living spaces. The large living room flows effortlessly into the dining area, providing an ideal layout for both everyday living and entertaining. The recently renovated kitchen showcases modern cabinetry, granite countertops, stainless steel appliances, and tile backsplash, offering both style and functionality. Sliding doors from the dining area lead to a private fenced backyard, providing space for outdoor relaxation, entertaining, or gardening. Upstairs you will find three comfortable bedrooms, including a generously sized primary bedroom with ample closet space. The full hallway bathroom serves all bedrooms, while the main-level powder room adds convenience for guests. The current owner purchased the home in 2022 shortly after a full renovation, at which time many key features were updated, including the kitchen, bathrooms, flooring, appliances, and water heater. The home has been well maintained since and offers buyers a true move-in ready opportunity with modern updates already completed. Conveniently located near Route 42, Route 73, and the Atlantic City Expressway, the property provides easy access to Philadelphia, Cherry Hill, and the Jersey Shore. Public transportation options include nearby NJ Transit rail service from Atco Station and PATCO access in Lindenwold, making commuting into Center City Philadelphia convenient. Residents enjoy close proximity to shopping, dining, and everyday conveniences including Cross Keys Commons, Gloucester Premium Outlets, local restaurants, and nearby parks and recreation areas. Offering modern updates, FHA financing eligibility, a private outdoor space, and a desirable community location, 22 Milstone Court presents an excellent opportunity for both homeowners and investors in today's market.
Courtesy of IDENTITY PROPERTIES
Property Details
Beds: 3
Baths: 1
Half Baths: 1
Total Number of Rooms: 8
Dining Room Features: Formal Dining Room
Kitchen Features: Eat-in Kitchen, Separate Dining Area
Appliances: Dishwasher, Electric Range/Oven, Microwave, Refrigerator, See Remarks, Range, Gas Water Heater
Has Fireplace: No
Number of Fireplaces: 0
Has Heating: Yes
Heating: See Remarks, Forced Air
Cooling: Central Air, See Remarks
Flooring: Ceramic Tile, Laminate, See Remarks
Basement: Slab Only, None
Interior Details
Property Class: Townhouse,Condo/TH
Structure Type: Townhouse
Architectural Style: Townhouse, Two Story
Building Sq Ft: 1,462
Year Built: 1972
Stories: 2
Levels: Two
Is New Construction: No
Has Private Pool: No
Has Spa: No
Has View: No
Direction Faces: Northwest
Has Garage: No
Has Attached Garage: No
Garage Spaces: 0
Has Carport: No
Carport Spaces: 0
Covered Spaces: 0
Has Open Parking: Yes
Other Structures: Shed(s)
Parking Features: Asphalt, See Remarks, Assigned
Total Parking Spaces: 0
Exterior Details
Lot Size (Acres): 0.0459
Lot Area: 0.0459
Lot Dimensions: 100.00 x 0.00
Lot Size (Square Feet): 1,999
Exterior Features: Open Porch(es), Sidewalk, Storage Shed, Yard
Roof: Asphalt
Patio and Porch Features: Porch
On Waterfront: No
Property Attached: No
Utilities / Green Energy Details
Gas: Natural Gas
Sewer: Public Sewer
Water Source: Public
# of Electric Meters: 0
# of Gas Meters: 0
# of Water Meters: 0
Community and Neighborhood Details
HOA and Financial Details
Annual Taxes: $4,842.00
Has Association: Yes
Association Fee: $92.00
Association Fee Frequency: Monthly
Association Fee 2: $0.00
Association Fee 2 Frequency: Monthly
Association Fee Includes: Snow Removal
More Listings from Fox & Foxx Realty
- SqFt.0
- Beds6
- Baths6+1½
- Garage3
- PoolNo
- SqFt.0
- Beds6
- Baths6+1½
- Garage3
- PoolNo
- SqFt.2,900
- Beds4
- Baths4+1½
- Garage2
- PoolNo
- SqFt.0
- Beds4
- Baths4+1½
- Garage2
- PoolNo

Back to search



























