38 Ave I, Monroe NJ 08831
Monroe, NJ 08831
Sq. Ft.
3,280Beds
5Baths
4.00Year Built
UnknownGarage
2Pool
No
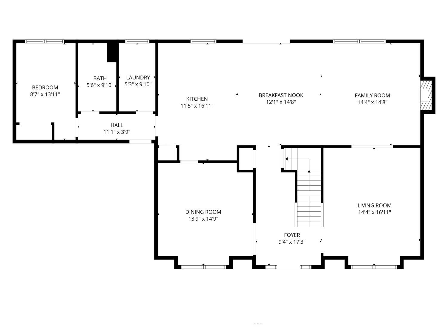
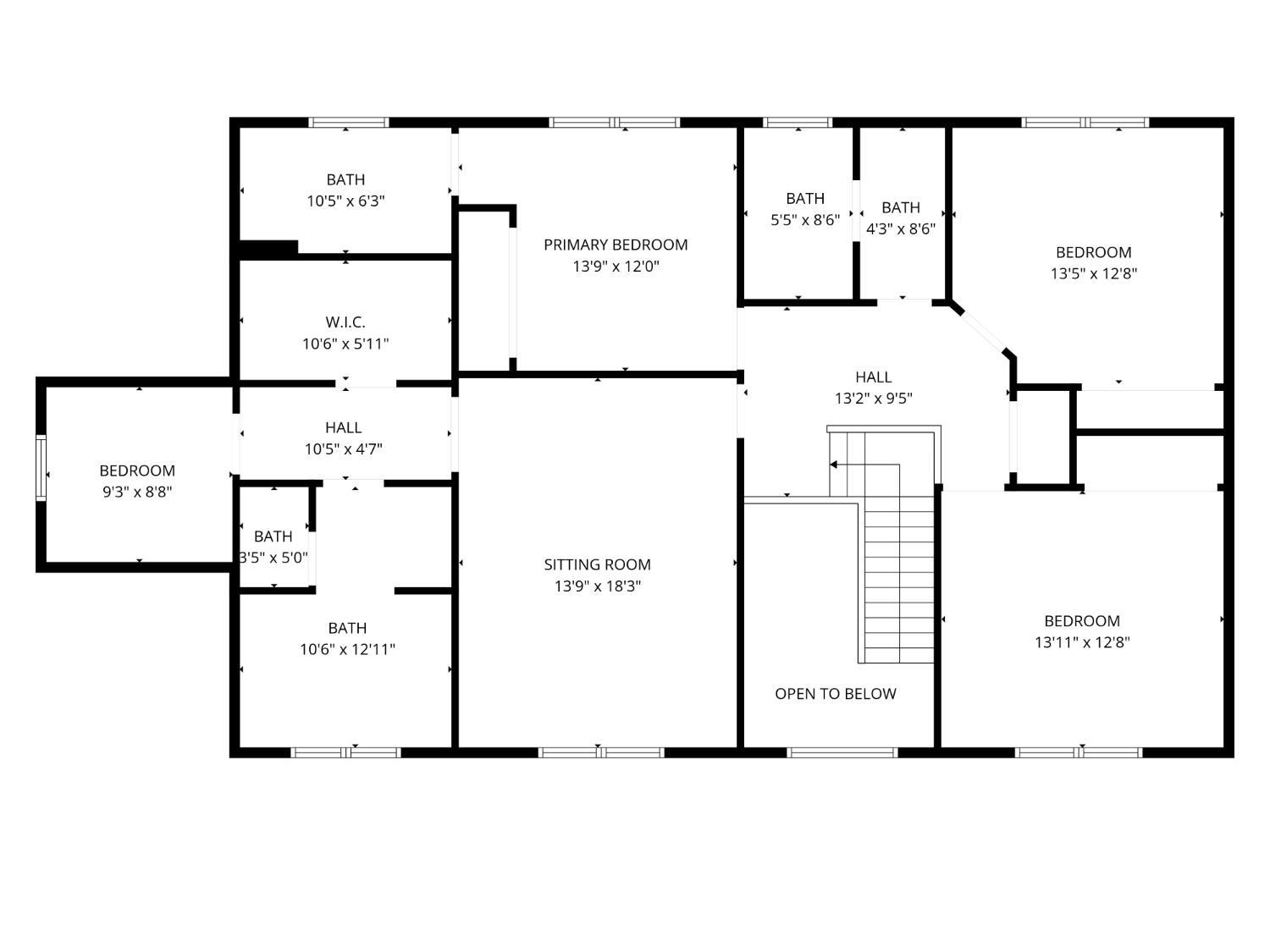
New Construction Opportunity in Monroe Township! This beautifully designed 5 bedroom, 4 full bath Custom Colonial is currently under construction and offers the perfect blend of quality craftsmanship, modern design, and convenience. Estimated delivery is late 2025, with some time remaining for the buyer to personalize interior finishes. Step inside to a spacious open foyer, the first level features an open-concept layout ideal for today's lifestyle. A designer kitchen with center island and custom cabinetry flows seamlessly into the bright dining area and adjoining gathering room, complete with a cozy gas fireplace. The formal dining room with tray ceiling and a flexible front room provide multiple options for entertaining or working from home. A convenient first floor bedroom and full bath are off the kitchen. Full laundry room. Access to the attached 2-car garage completes the main level. Upstairs, the primary suite offers a relaxing retreat with tray ceiling, dual walk in closets, one which could be an office and a spa-inspired bath featuring a free standing tub, stall shower, and double vanity. Three additional bedrooms one with its own private bath. A third full bath in the hallway features a separate vanity area. The full unfinished basement offers abundant potential for future recreation, gym, or home theater space. Built with attention to detail and energy efficiency, modern HVAC, and highest quality materials throughout. The property sits on a quiet residential street in desirable Monroe Township, close to top-rated schools, shopping, dining, and major commuter routes. Highlights include: - Brand-new construction by a well know reputable local builder - 5 bedrooms, 4 full baths, approx. 3280 sq ft (to be verified upon completion) Open concept kitchen, dining, and gathering room Formal dining room and first floor flex space or home office 9' ceilings on main level Primary suite with dual walk-in closets and luxury ensuite bath Full unfinished basement Two car attached garage Energy efficient systems and new mechanicals Buyer choice of selected finishes available depending on construction stage Builder's warranty included Estimated completion: late 2025 Taxes to be assessed upon completion Photos, renderings, and floor plans are for illustration only and may depict similar homes or optional upgrades. All dimensions, materials, and features are subject to field variation and builder discretion. Experience the best of Monroe new construction thoughtfully designed spaces, modern amenities, and lasting value in a sought after Central Jersey location. Contact listing agent for spec sheet, floor plan, and additional details.
Courtesy of COLDWELL BANKER REALTY
Property Details
Beds: 5
Baths: 4
Half Baths: 0
Total Number of Rooms: 12
Master Bedroom Features: Two Sinks, Full Bath, Walk-In Closet(s)
Dining Room Features: Formal Dining Room
Kitchen Features: Granite/Corian Countertops, Breakfast Bar, Kitchen Island, Pantry, Eat-in Kitchen, Separate Dining Area
Appliances: Dishwasher, Gas Range/Oven, Microwave, Range, Gas Water Heater
Has Fireplace: Yes
Number of Fireplaces: 1
Fireplace Features: Gas
Has Heating: Yes
Heating: Zoned, Central, Forced Air
Cooling: Central Air, Ceiling Fan(s), Zoned
Flooring: Carpet, Ceramic Tile, Wood
Basement: Full, Interior Entry
Interior Details
Property Class: Single Family Residence
Structure Type: Custom Home
Architectural Style: Colonial, Custom Home
Building Sq Ft: 3,280
Year Built: 0
Stories: 2
Levels: Two
Condition: Under Construction
Is New Construction: Yes
Has Private Pool: No
Has Spa: No
Has View: No
Has Garage: Yes
Has Attached Garage: Yes
Garage Spaces: 2
Has Carport: No
Carport Spaces: 0
Covered Spaces: 2
Has Open Parking: Yes
Parking Features: 2 Car Width, Asphalt, Garage, Attached, Built-In Garage, Detached
Total Parking Spaces: 0
Exterior Details
Lot Size (Acres): 0.0000
Lot Area: 0.0000
Lot Dimensions: 130.00 x 100.00
Lot Size (Square Feet): 0
Exterior Features: Curbs, Sidewalk
Roof: Asphalt
On Waterfront: No
Property Attached: No
Utilities / Green Energy Details
Electric: 200 Amp(s)
Gas: Natural Gas
Sewer: Public Sewer
Water Source: Public
# of Electric Meters: 0
# of Gas Meters: 0
# of Water Meters: 0
Community and Neighborhood Details
HOA and Financial Details
Annual Taxes: $5,339.00
Has Association: No
Association Fee: $0.00
Association Fee 2: $0.00
Association Fee 2 Frequency: Monthly
Similar Listings
- SqFt.3,633
- Beds5
- Baths4
- Garage2
- PoolNo
- SqFt.3,398
- Beds4
- Baths4
- Garage3
- PoolNo
- SqFt.3,548
- Beds5
- Baths4
- Garage3
- PoolNo
- SqFt.3,548
- Beds5
- Baths4
- Garage3
- PoolNo

Back to search




































