38 Ave I, Monroe NJ 08831
Monroe, NJ 08831
Sq. Ft.
3,280Beds
5Baths
4.00Year Built
UnknownGarage
2Pool
No
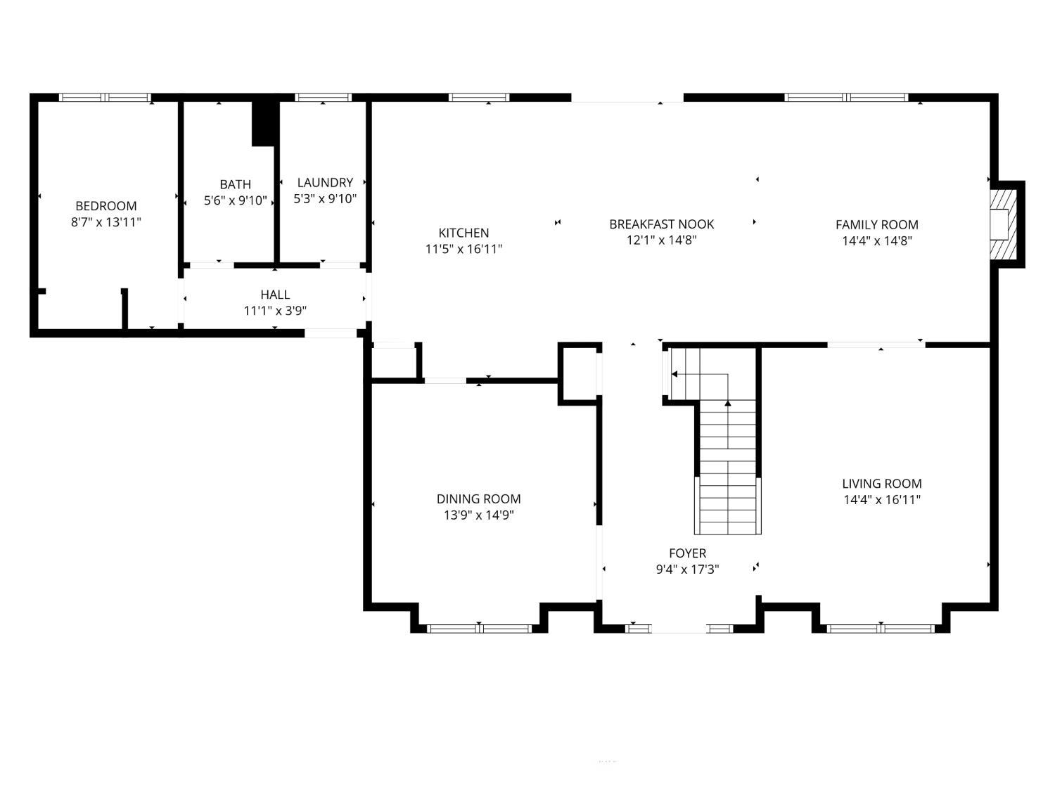
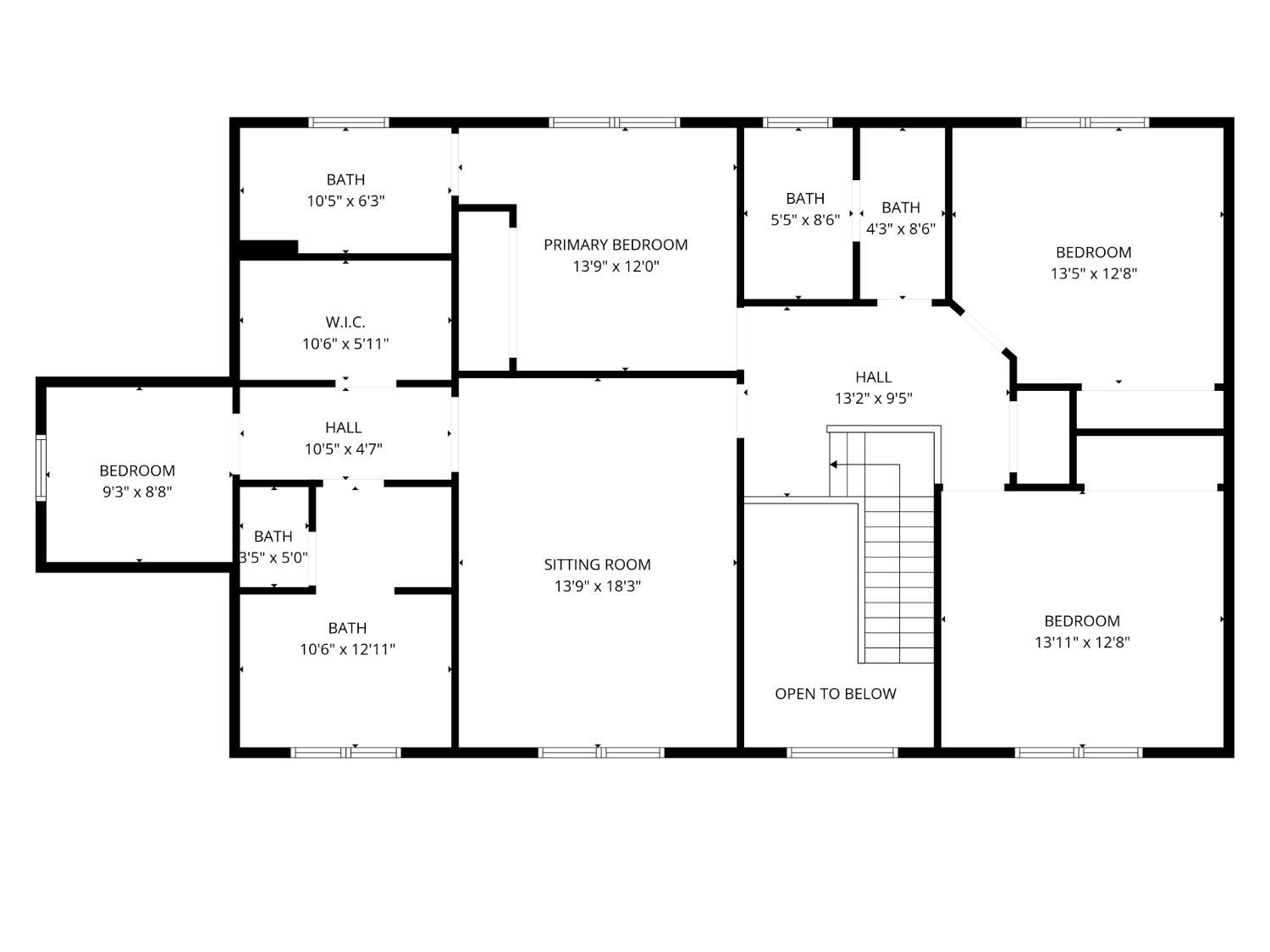
New Construction Opportunity in Monroe Township! This beautifully designed 5 bedroom, 4 full bath Custom Colonial is currently under construction and offers the perfect blend of quality craftsmanship, modern design, and convenience. Quick delivery. Step inside to a spacious open foyer; the first level features an open-concept layout ideal for today's lifestyle. A designer kitchen with center island, granite countertops, and custom cabinetry flows seamlessly into the bright dining area and adjoining gathering room with a cozy gas fireplace. The formal dining room with tray ceiling and a flexible front room provide options for entertaining or working from home. A first-floor bedroom and full bath are off the kitchen. Full laundry room with cabinetry. Access to the attached 2-car garage completes the main level. Upstairs, the primary suite offers a relaxing retreat with tray ceiling, dual walk-in closets (one ideal for an office), and a spa-inspired bath featuring a free-standing tub, stall shower with frameless glass door, and double vanity. Three additional bedrooms include one with its own private bath. A third full bath in the hallway features a separate vanity area. The full unfinished basement offers potential for recreation, gym, or home theater. Built with attention to detail, energy-efficient systems, modern HVAC, and quality materials throughout. Set on a quiet street in desirable Monroe Township near top-rated schools, shopping, dining, and major commuter routes. Highlights include: New construction by a reputable local builder; 5 bedrooms, 4 full baths, approx. 3,280 sq ft (to be verified); open-concept living; 9' ceilings on main level; two-car garage; energy-efficient systems; buyer-selected finishes available; builder's warranty included. Taxes to be assessed upon completion.
Courtesy of COLDWELL BANKER REALTY
$1,225,000
Mar 19, 2026
$1,225,000
48 days on market
Listing office changed from COLDWELL BANKER REALTY to .
Listing office changed from to COLDWELL BANKER REALTY.
Price reduced to $1,225,000.
Price reduced to $1,225,000.
Price reduced to $1,225,000.
Price reduced to $1,225,000.
Price reduced to $1,225,000.
Price reduced to $1,225,000.
Price reduced to $1,225,000.
Listing office changed from COLDWELL BANKER REALTY to .
Listing office changed from to COLDWELL BANKER REALTY.
Listing office changed from COLDWELL BANKER REALTY to .
Listing office changed from to COLDWELL BANKER REALTY.
Property Details
Beds: 5
Baths: 4
Half Baths: 0
Total Number of Rooms: 12
Master Bedroom Features: Two Sinks, Full Bath, Walk-In Closet(s)
Dining Room Features: Formal Dining Room
Kitchen Features: Granite/Corian Countertops, Breakfast Bar, Kitchen Island, Pantry, Eat-in Kitchen, Separate Dining Area
Appliances: Dishwasher, Gas Range/Oven, Microwave, Gas Water Heater
Has Fireplace: Yes
Number of Fireplaces: 1
Fireplace Features: Gas
Has Heating: Yes
Heating: Zoned, Central, Forced Air
Cooling: Central Air, Ceiling Fan(s), Zoned
Flooring: Carpet, Ceramic Tile, Wood
Basement: Full, Interior Entry
Interior Details
Property Class: Single Family Residence
Structure Type: Custom Home
Architectural Style: Colonial, Custom Home, Two Story
Building Sq Ft: 3,280
Year Built: 0
Stories: 2
Levels: Two
Condition: Under Construction
Is New Construction: Yes
Has Private Pool: No
Has Spa: No
Has View: No
Has Garage: Yes
Has Attached Garage: Yes
Garage Spaces: 2
Has Carport: No
Carport Spaces: 0
Covered Spaces: 2
Has Open Parking: Yes
Parking Features: 2 Car Width, Asphalt, Garage, Attached, Built-In Garage, Detached
Total Parking Spaces: 0
Exterior Details
Lot Size (Acres): 0.3000
Lot Area: 0.3000
Lot Dimensions: 100.00 x 130.00
Lot Size (Square Feet): 13,068
Exterior Features: Curbs, Patio, Sidewalk
Roof: Asphalt
Patio and Porch Features: Patio
On Waterfront: No
Property Attached: No
Utilities / Green Energy Details
Electric: 200 Amp(s)
Gas: Natural Gas
Sewer: Public Sewer
Water Source: Public
# of Electric Meters: 0
# of Gas Meters: 0
# of Water Meters: 0
Community and Neighborhood Details
HOA and Financial Details
Annual Taxes: $0.00
Has Association: No
Association Fee: $0.00
Association Fee 2: $0.00
Association Fee 2 Frequency: Monthly
Similar Listings
- SqFt.3,633
- Beds5
- Baths4
- Garage2
- PoolNo
- SqFt.3,398
- Beds4
- Baths4
- Garage3
- PoolNo
- SqFt.3,548
- Beds5
- Baths4
- Garage3
- PoolNo
- SqFt.3,548
- Beds5
- Baths4
- Garage3
- PoolNo

Back to search












































