64 Avenue I Avenue, Monroe NJ 08831
Monroe, NJ 08831
Beds
3Baths
1.00Year Built
1957Pool
No
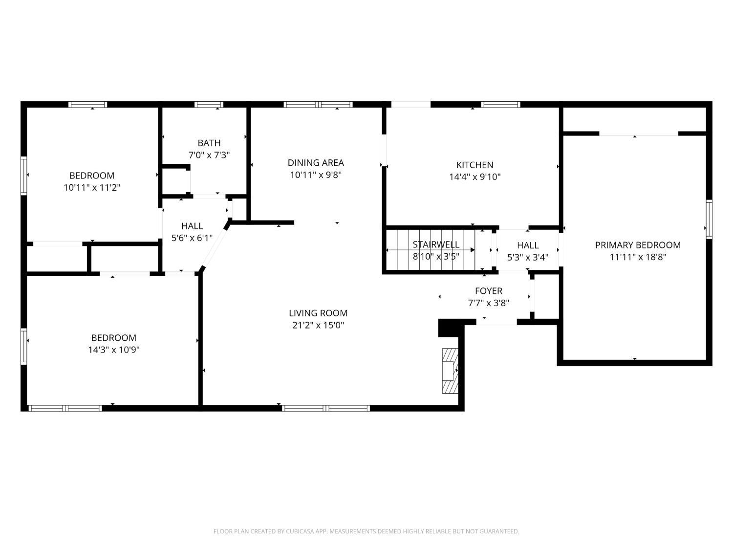
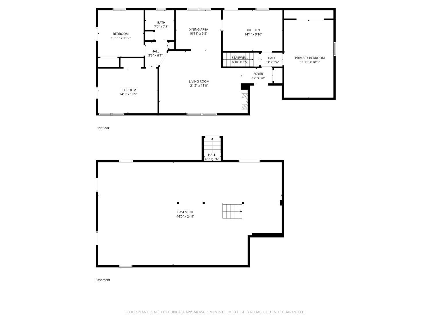
Rare opportunity on a quiet dead-end street setting in the desirable Outcalt section of Monroe Township. This ranch-style home sits on an oversized approx. half acre lot surrounded by mature trees offering privacy, space, and exceptional potential. Plenty of land to turn your large yard into an outdoor oasis. The home features a functional layout that includes a large living room, formal dining room, and eat in kitchen as well as three generous sized bedrooms and a full bathroom. Beautiful hard wood floors in LR and DR and also under two carpeted bedrooms. A full basement provides extensive storage and additional possibilities. Additional highlights include a whole-house generator providing convenient backup power and peace of mind during outages and a large shed. A long horseshoe driveway and covered carport provide ample parking. Ideally located on a peaceful street, and just a short stroll to beautiful Ave K Veterans Park (Spray Park). Close to shopping, dining, major roadways and only a short ride to the Jersey Shore. A rare chance to secure a large property surrounded by larger, higher valued homes making it feasible to add onto the house in the future if desired. Attention builders: this property could possibly be subdivided into two building lots (R-10 zone). Buyer to due their own due diligence.
Courtesy of GREEN LIGHT REALTY LLC
$584,000
Apr 22, 2026
$584,000
2 days on market
Listing office changed from GREEN LIGHT REALTY LLC to .
Property Details
Beds: 3
Baths: 1
Half Baths: 0
Total Number of Rooms: 6
Master Bedroom Features: 1st Floor
Dining Room Features: Formal Dining Room
Kitchen Features: Eat-in Kitchen
Appliances: Dishwasher, Dryer, Gas Range/Oven, Refrigerator, Washer, Gas Water Heater
Has Fireplace: No
Number of Fireplaces: 0
Has Heating: Yes
Heating: Radiant-Electric, Forced Air
Cooling: Ceiling Fan(s), Wall Unit(s), Window Unit(s)
Flooring: Carpet, Wood, Vinyl-Linoleum
Basement: Full, Exterior Entry, Storage Space, Interior Entry, Laundry Facilities
Interior Details
Property Class: Single Family Residence
Architectural Style: Ranch
Building Sq Ft: 0
Year Built: 1957
Stories: 1
Levels: One
Is New Construction: No
Has Private Pool: No
Has Spa: No
Has View: No
Has Garage: No
Has Attached Garage: No
Garage Spaces: 0
Has Carport: Yes
Carport Spaces: 0
Covered Spaces: 0
Has Open Parking: Yes
Other Structures: Shed(s)
Parking Features: Detached Carport, 3 Cars Deep, Additional Parking, Asphalt
Total Parking Spaces: 0
Exterior Details
Lot Size (Acres): 0.4729
Lot Area: 0.4729
Lot Dimensions: 206.00 x 100.00
Lot Size (Square Feet): 20,600
Exterior Features: Storage Shed, Yard
Roof: Asphalt
On Waterfront: No
Property Attached: No
Utilities / Green Energy Details
Gas: Natural Gas
Sewer: Public Sewer
Water Source: Public
# of Electric Meters: 0
# of Gas Meters: 0
# of Water Meters: 0
HOA and Financial Details
Annual Taxes: $8,203.00
Has Association: No
Association Fee: $0.00
Association Fee 2: $0.00
Association Fee 2 Frequency: Monthly
Similar Listings
- SqFt.0
- Beds4
- Baths2
- Garage1
- PoolNo
- SqFt.0
- Beds3
- Baths3
- Garage2
- PoolNo
- SqFt.0
- Beds2
- Baths2+1½
- Garage2
- PoolNo
- SqFt.0
- Beds2
- Baths2
- Garage2
- PoolNo

Back to search









































