80 Gaywood Avenue, Colonia NJ 07067
Colonia, NJ 07067
Sq. Ft.
3,489Beds
5Baths
4.50Year Built
2025Garage
2Pool
No
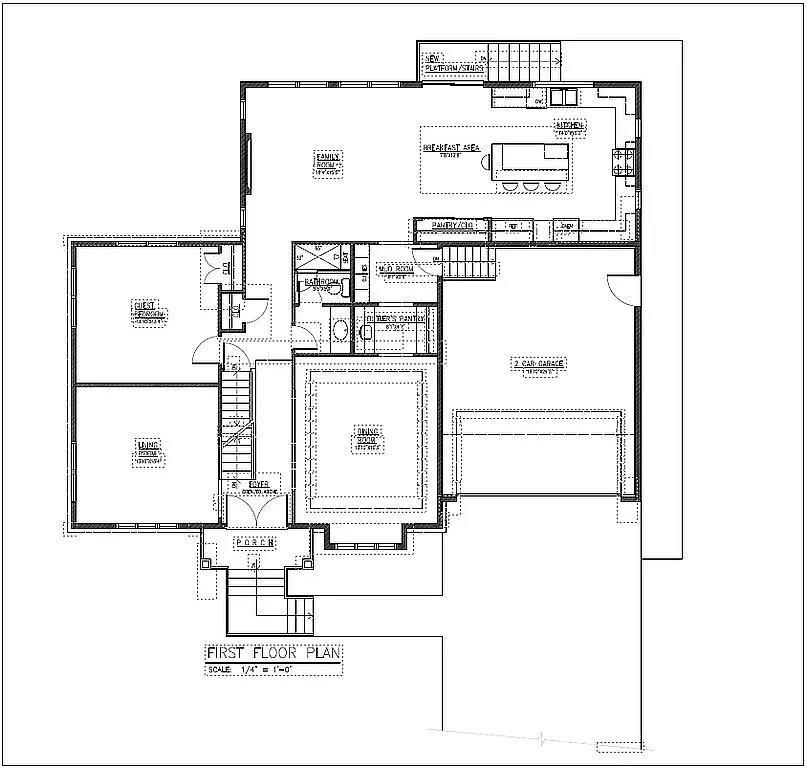
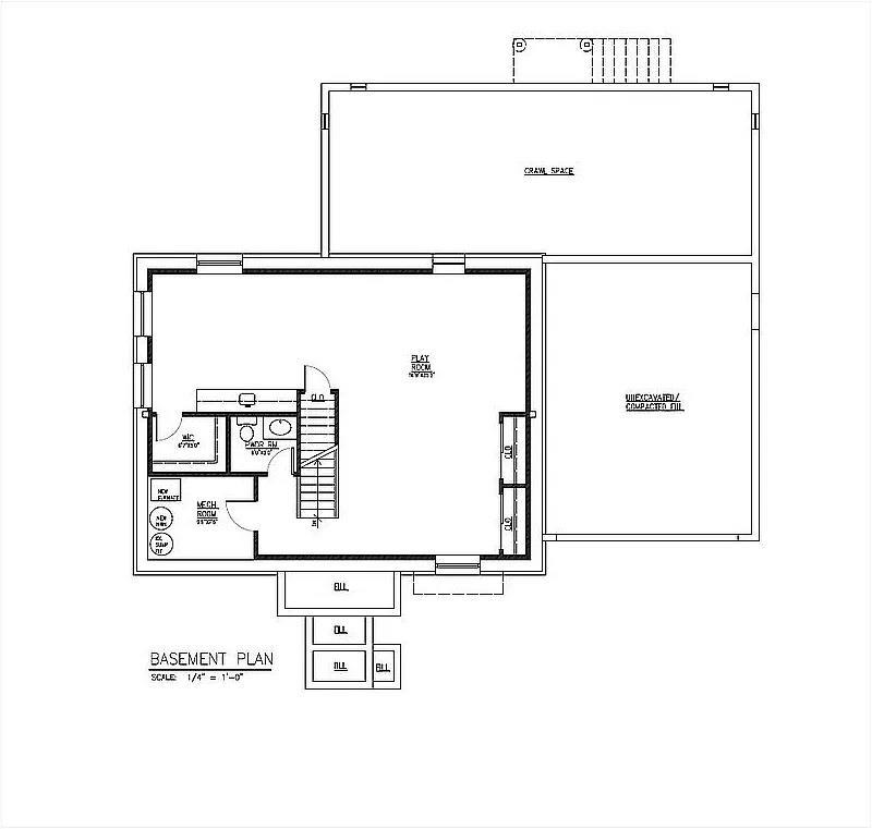
Welcome to 80 Gaywood Avenue, a stunning new-construction home in one of Colonia's most desirable neighborhoods. Two-story residence offers ~5,007 sq. ft. of luxury with a finished basement and 2-car garage. Step into a grand two-story foyer leading to a bright open-concept layout featuring a family room with electric fireplace, a gourmet kitchen with oversized island and butler's pantry, and a formal dining room perfect for entertaining. A main-level guest suite and mudroom add convenience. Upstairs, the primary suite impresses with dual walk-in closets and a spa-inspired bath with soaking tub and glass shower. Three additional bedrooms, two full baths, and a laundry room complete the second floor. The finished basement offers extra living space for a gym, playroom, or theater.
Courtesy of PREMIER HOME PROS
Property Details
Beds: 5
Baths: 4
Half Baths: 1
Total Number of Rooms: 19
Master Bedroom Features: Full Bath, Walk-In Closet(s)
Dining Room Features: Formal Dining Room
Kitchen Features: Kitchen Island, Eat-in Kitchen
Appliances: Dishwasher, Disposal, Microwave, Refrigerator, Trash Compactor, Washer, Electric Water Heater
Has Fireplace: Yes
Number of Fireplaces: 1
Fireplace Features: Gas
Has Heating: Yes
Heating: Zoned, Forced Air
Cooling: Central Air
Flooring: Wood
Basement: Finished, Bath Half
Interior Details
Property Class: Single Family Residence
Structure Type: Custom Development
Architectural Style: Custom Development
Building Sq Ft: 3,489
Year Built: 2025
Stories: 2
Levels: Below Grade, Two
Is New Construction: No
Has Private Pool: No
Has Spa: No
Has View: No
Has Garage: Yes
Has Attached Garage: Yes
Garage Spaces: 2
Has Carport: No
Carport Spaces: 0
Covered Spaces: 2
Has Open Parking: Yes
Parking Features: 2 Car Width, Garage, Attached, Parking Pad, Driveway
Total Parking Spaces: 0
Exterior Details
Lot Size (Acres): 0.2999
Lot Area: 0.2999
Lot Dimensions: 111.00 x 220.00
Lot Size (Square Feet): 13,064
Exterior Features: Deck
Roof: Asphalt
Patio and Porch Features: Deck
On Waterfront: No
Property Attached: No
Utilities / Green Energy Details
Gas: Natural Gas
Sewer: Public Sewer
Water Source: Public
# of Electric Meters: 0
# of Gas Meters: 0
# of Water Meters: 0
HOA and Financial Details
Annual Taxes: $10,229.00
Has Association: No
Association Fee: $0.00
Association Fee 2: $0.00
Association Fee 2 Frequency: Monthly
Similar Listings
- SqFt.4,000
- Beds4
- Baths3+1½
- Garage2
- PoolNo
- SqFt.4,200
- Beds4
- Baths3+1½
- Garage2
- PoolNo
- SqFt.3,470
- Beds5
- Baths4+1½
- Garage2
- PoolNo

Back to search







